55 Blair Road is creative home that will amaze you with its details, design ideas and creative solutions of architectural problems. Take a look at this masterpiece and see why this creative home won a “building of the year” award!
Among all beautiful houses I’ve published so far, 55 Blair Road home has its own place in my mind. Elegance and creativity are features that completely defined atmosphere inside and outside of the house, even though I can’t divide interiors from the exterior living space at all, which is one of the reasons why I find this home so attractive and impressive.
According to the Ong & Ong Pte Ltd, architecture office behind the project, the main idea was “to create a light open plan living space, whilst promoting inside/outside space.” Which they did perfectly. Let’s take a walk through this amazing creative home.
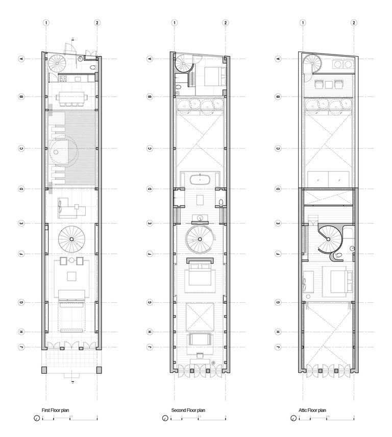
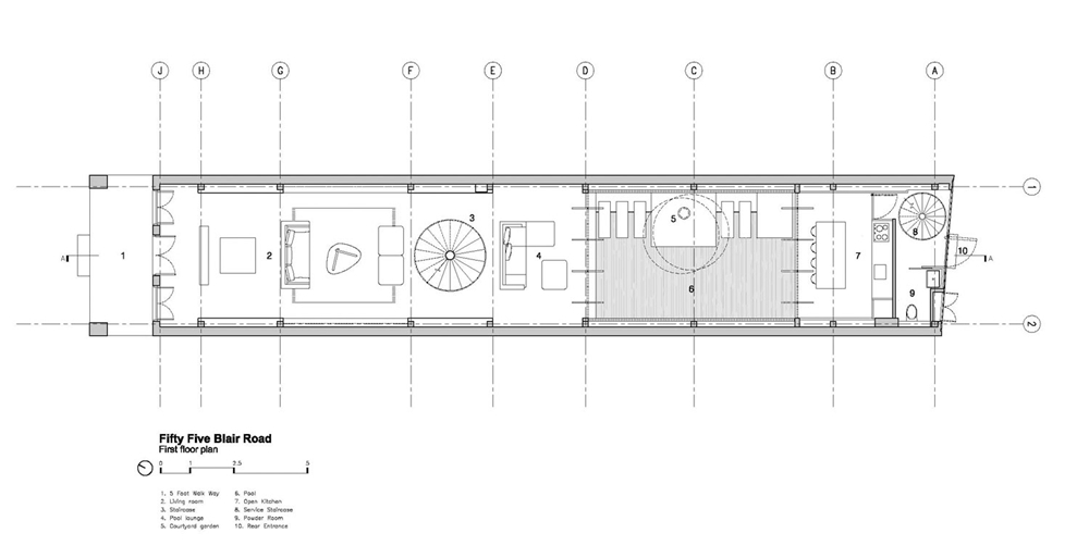
Standing in front of 55 blair Road, you won’t notice anything that gives away modern interiors on other side of the wall. Rather beautiful and very detailed facade is renovated in traditional style. Making the owner’s wish about bright living space come true, facade was also painted all in white. Upon entering, you will find yourself in the narrow, minimalist lobby with two large modern paintings on the left and right walls, and stunning spiral staircase right ahead. Behind the stairs gorgeous contemporary sofa welcomes you to the most amazing part of this creative home, narrow outdoor swimming pool with the frangipani tree (garden) and wooden bridge leading to the kitchen on the other side. Simply stunning! (btw. the Century Frangipani is a native tree that has been associated with Buddhist and Hindu cultures.)
First floor offers incredible bright modern bedroom with large void that allows a view down to the first floor, study and an en suite bathroom. Instead of completely covering already very narrow floor area, architects did right the opposite. “Bringing light into this long plot was an important consideration. A large air well divides the two sections of the house allowing for maximum light to penetrate the living spaces. Aluminum wall cladding wraps around the void. The aluminum bands reflect light into the living spaces. The void acts not only as a large light well but also encourages natural ventilation within the house.” Creative, isn’t it?
Attic floor with another bedroom and bathroom along with roof terraces completed this stunning design. (Read full concept description on Archdaily) Now, how do you like this creative home? Do you find it impressive as much as I do? Would you like to add anything to it? (I’d love to see some modern furniture pieces from aROOTS website) Let me know in the comment section below and then check out this modern mansion next, it’s as much impressive as this home.
All photos © Derek Swalwell



























